创意家具打造不一样的房间
现代人快节奏、高频率、满负荷的生活状态,让人们产生了亟欲摆脱繁琐、复杂、追求简单和自然的心理,所以现代简约的装修慢慢的走入人们的生活,现代风格追求的时尚与潮流,非常注重居室空间的布局与使用功能的完美结合,现代风格下面介绍一个99平米的现代风格装修。

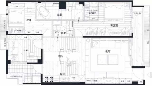
上图是装修的平面图,房间一共有主卧、次卧、主卫、客卫、书房、餐厅、客厅、厨房、衣帽间。

一进房间就一款伊姆斯躺椅摆在客厅中,现代而时尚。

开放的客厅餐厅厨房,空间更好的展现在我们眼中。餐椅使用伊姆斯餐椅。

不大的书房用斜放的沙发增添空间律动感,深沉的颜色利于思考和静心!这个地毯看起来装饰意味特别强,好喜欢!

卧室装修是以暖色调为主,安静对睡眠特别好。

淋浴房和洗手间同处一个空间,将空间合理利用不浪费不拥挤。
此文关键字:创意家具打造不一样的房间
相关资讯
同类文章排行
- 伊姆斯躺椅:经典之作的永恒魅力
- 豪华家具品牌值得花这个钱吗?
- 中古世纪家具代表都有哪些
- 八栋房屋中配备了中世纪现代家具,增添了时尚气息
- Delo重新推出布艺软垫 Eames 休闲椅 – 这款标志性扶手椅既实用又奢华
- 选购沙发要注意哪些必要的因素呢
- 在生活中怎样选购布艺沙发的方法
- 选购沙发要注意哪些重要的方面呢
- 真皮沙发破了之后怎样修补呢
- 选择沙发有哪些实用的技巧
最新资讯文章
- 伊姆斯躺椅:经典之作的永恒魅力
- 豪华家具品牌值得花这个钱吗?
- 中古世纪家具代表都有哪些
- 八栋房屋中配备了中世纪现代家具,增添了时尚气息
- Delo重新推出布艺软垫 Eames 休闲椅 – 这款标志性扶手椅既实用又奢华
- 选购沙发要注意哪些必要的因素呢
- 在生活中怎样选购布艺沙发的方法
- 选购沙发要注意哪些重要的方面呢
- 真皮沙发破了之后怎样修补呢
- 选择沙发有哪些实用的技巧
您的浏览历史




