家一样的办公环境
要打造成家一样的办公环境确实不容易,因为公司和家里布置不同,所以装修起来特别费劲,今天我们来介绍Emil Dervish的作品,他装修的办公室非常具有特色,真的把冰冷乏味的办公室环境打造成为家中房间的温馨,Emil Dervish主要是从色彩的运用加上家居的摆设来进行变换。
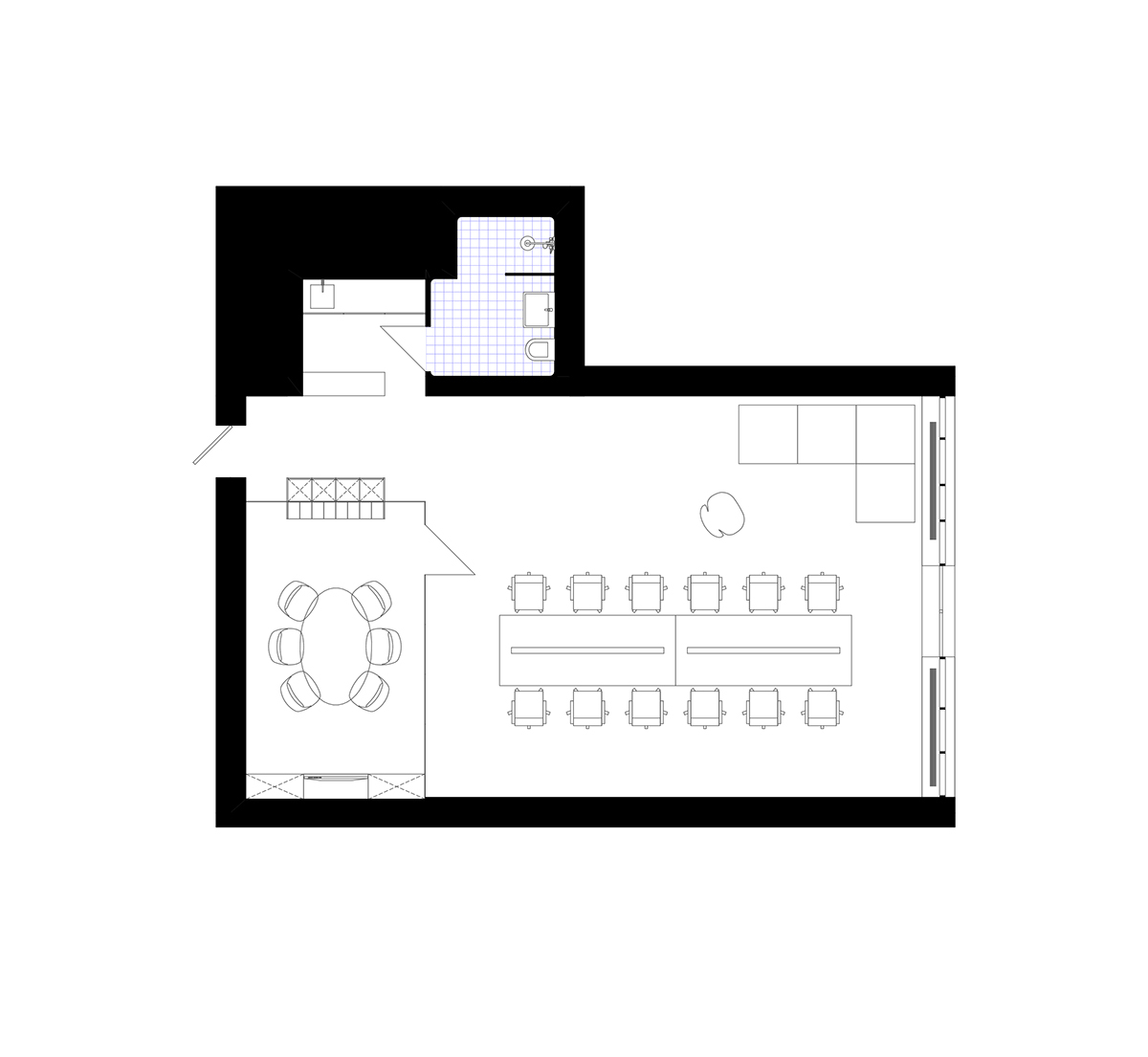
这个办公环境的面积:88平米,从入门就有一直家的感觉,整个空间采用混凝土原色,木质原色,肉粉色,宝蓝色以及黑色进行搭配,适当的色彩点缀让空间简约质感。房间一共有5大部分组成:工作区,会议区,休息区,厨房以及洗手间,每个空间都打造了不一样的视觉效果。下面让我们看下这个类似于家的办公室吧。






下一篇:现代简约房间装修效果图上一篇: 客厅应该怎么装修
此文关键字:家一样的办公环境
相关资讯
同类文章排行
- 伊姆斯躺椅:经典之作的永恒魅力
- 豪华家具品牌值得花这个钱吗?
- 中古世纪家具代表都有哪些
- 八栋房屋中配备了中世纪现代家具,增添了时尚气息
- Delo重新推出布艺软垫 Eames 休闲椅 – 这款标志性扶手椅既实用又奢华
- 选购沙发要注意哪些必要的因素呢
- 在生活中怎样选购布艺沙发的方法
- 选购沙发要注意哪些重要的方面呢
- 真皮沙发破了之后怎样修补呢
- 选择沙发有哪些实用的技巧
最新资讯文章
- 伊姆斯躺椅:经典之作的永恒魅力
- 豪华家具品牌值得花这个钱吗?
- 中古世纪家具代表都有哪些
- 八栋房屋中配备了中世纪现代家具,增添了时尚气息
- Delo重新推出布艺软垫 Eames 休闲椅 – 这款标志性扶手椅既实用又奢华
- 选购沙发要注意哪些必要的因素呢
- 在生活中怎样选购布艺沙发的方法
- 选购沙发要注意哪些重要的方面呢
- 真皮沙发破了之后怎样修补呢
- 选择沙发有哪些实用的技巧
您的浏览历史




